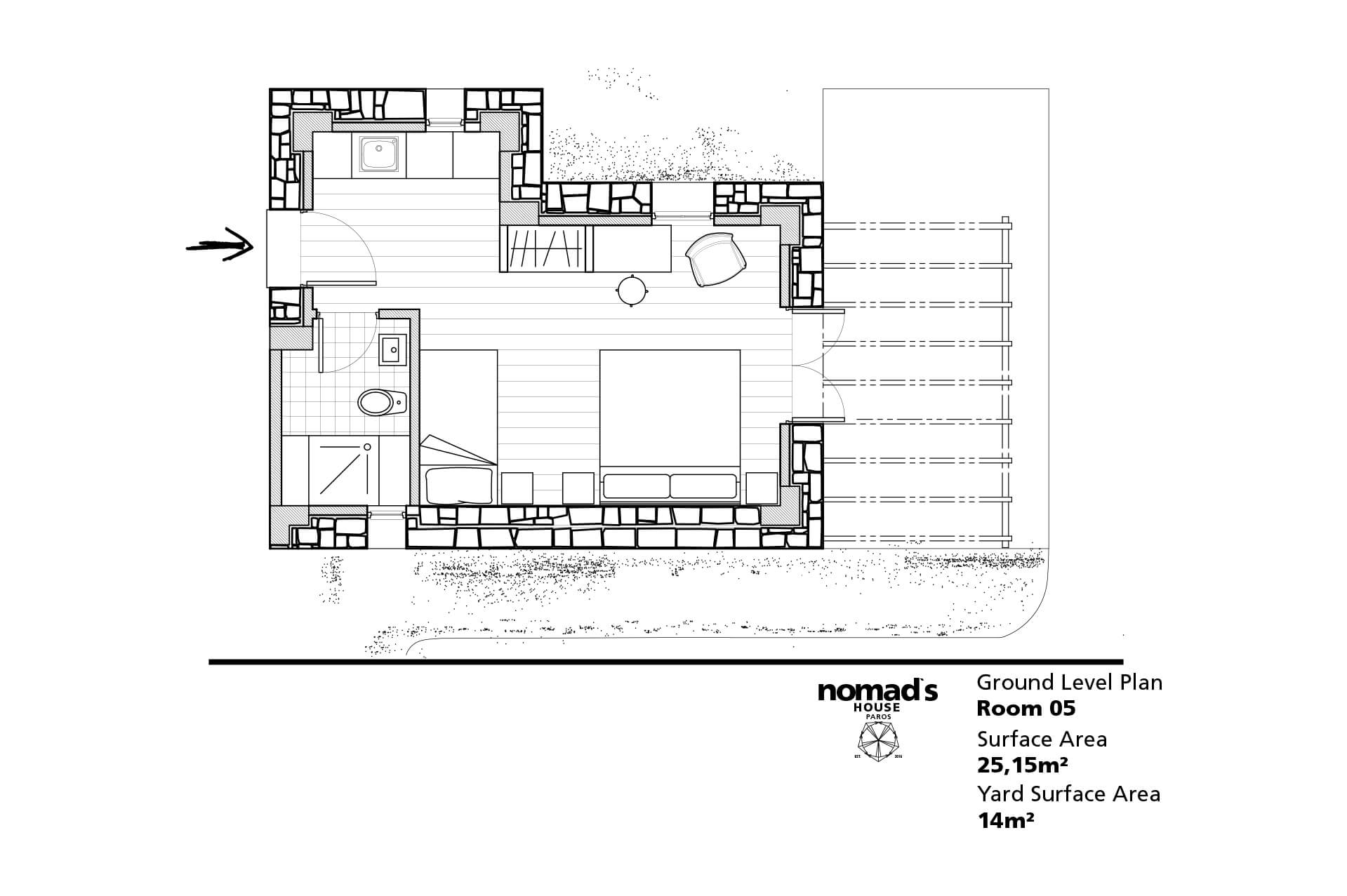
Club Τρίκλινο

Ωφέλιμο Εμβαδόν 25,15 τ.μ. / Εμβαδόν Αυλής 14 τ.μ.

Γνωρίστε

Το Club Τρίκλινο

2 ΚΡΕΒΑΤΙΑ ΓΙΑ 3 ΑΤΟΜΑ

Βρίσκεται στην στάθμη του ισογείου και προσφέρει την δυνατότητα φιλοξενίας τριών ατόμων σε χώρο 25,15 τ.μ. Για σύντομη ή όχι διαμονή, το δωμάτιο διαθέτει ένα υπέρδιπλο και ένα μονό, αμερικάνικου τύπου χειροποίητα κρεβάτια και κατά περίσταση παιδική κλίνη ή πάρκο. Όπως σε όλα τα δωμάτια που παρουσιάζονται, υπάρχει δυνατότητα παρασκευής γεύματος και εστίασης στην κουζίνα του και χρήση μυρωδικών βοτάνων ή ζαρζαβατικών από τον κήπο μας ή την ιδιωτική του αυλή επιφάνειας 14 τ.μ. Βρίσκεται στην κορυφή του οικοπέδου, στην «πλώρη του σκάφους», για κάποιον που τύχει να παρατηρήσει την θέση του σε μια κάτοψη.

85€ – 185€
ΤΙΜΗ / ΔΙΑΝΥΚΤΕΡΕΥΣΗ

top-view-room-five

Τι Προσφέρουμε

Παροχές

Τηλεόραση

Κλιματισμός

Ανεμιστήρας Οροφής

Κουζίνα με Βασικό Εξοπλισμό

Ιματισμός

Σεσουάρ

Free WiFi

Χώρος Στάθμευσης